多喉徑風量測量裝置
一、儀表簡介:
多喉徑風量測量裝置在火力發電廠,鍋爐燃燒是否穩定直接關系到其運行的安全性和經濟性。燃燒不穩定,不僅影響鍋爐的效率,而且可能造成滅火。燃燒的經濟性,就要求保持合理的風煤比,合理的一,二次風配比及送,吸風量的協調。由于風道截面積很大,直管段長度很短,要求壓力損失小,插入式多點均速流量測量裝置測量進入鍋爐的風量,煙道的煙量和大容量機組回熱蒸汽流量的測量取得了良好的使用效果。
二、工作原理:
多喉徑風量測量裝置根據流體力學原理,當流體經過喉徑管時,通過收縮段喉部流向擴散角。經過兩側擴散角的擴散抽吸作用,喉部的流體被整流和放大,極大的提高了喉部流速,使喉部的靜壓明顯下降。從而使全壓孔與喉部測得的靜壓差放大。流量越大產生的差壓越大,通過測量差壓的方法,就可以測的管道流量。
Pl 測量管人口靜壓力;
K。 大管流量函數;
tl 測量管人口流體溫度;
K1 儀表修正系數;
p 測量管人口與喉徑之間的差壓;
f(p t) 溫壓補償函數。
三、應用范圍:
多喉徑是一種基于伯努力方程、運用現代航空技術----空氣動力學理論和流體力學理論,實現單點、多點高精度測量的差壓式智能流量計。它廣泛適用于火電廠、鋼鐵廠、化工廠的大、中、小型管道常溫或高溫氣體(空氣、蒸汽、天然氣、煤氣、煙氣)流量測量,特別適用于火電廠一次風、二次風流量測量。
四、獨特優勢:
1、根據現場工藝條件的不同分為單喉徑和多喉徑兩種;
2、壓損小,管徑大于 300mm的管徑其壓力損失可以忽略不計,節能*;
3、直管段要求低。一般情況下,前直管段長度為0.7 1.5D;
4、差壓值大。小流速情況下,仍然得到一個較大的差壓值;
5、信號穩定可靠,無脈動差壓信號。由于采用了 多喉徑 結構,使得被測介質在各節流段有一個被 整流 的過程,zui大限度的消除了渦流的影響;
6、特殊的布點結構,可以得到整個管道截面的測量數據,從而保證測量的真實性和精確性;
7、產品壽命長。產品采用316或1Crl8Ni9Ti材料,并在流體測量面均進行了耐磨處理,使用經久耐磨;
8、采用特殊取壓結構,從根本上避免堵塞。可通過防堵吹掃裝置,進行在線吹掃維護;
9、體積小,安裝方便。只需在管道上開孔安裝即可,安裝法蘭隨機配給。
五、性能指標:
1. 適用介質:空氣、蒸汽、天然氣、煤氣、煙氣、水等介質;
2. 工作壓力: PN= -30kPa~16MPa;
3. 工作溫度:-40℃~560℃;
4.流速測量范圍:0.5~60m/s;
5.精度等級: 1.0%, 1.5%;
6.公稱通徑: 100 mm~6000mm,100 100 mm~6000 6000mm;
7.參照標準:GB/T2624-2006、GB1236-2000及JJG835-93;
8.連接方式:焊接,法蘭連接。
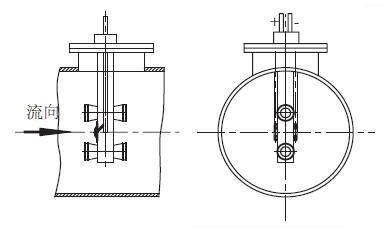
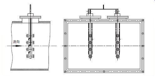
六、結構形式
根據其插入點數的不同分為單點多喉徑流量測量裝置和多點多喉徑流量測量裝置兩種結構。結構圖如下:



不同管道結構規格多喉徑布置方式:
單點布置(適用于300mm~1000mm管道)

兩點布置(適用于1000mm~2000mm管道)

三點布置(適用于2000mm~4000mm管道)

多點布置(適用于4000mm以上管道)

七、安裝說明:
1. 插入式多喉徑的安裝位置直接影響測量結果,故要求選擇理想安裝位置,在安裝時應盡量避免管道阻力件對流量測量的影響,盡量避開彎管、閥門等構件在管道中形成的渦流區。
2. 確定安裝位置后,按要求沿管道軸線方向開一個(或多個方孔),再將法蘭安放到大管道矩形長方孔上并焊接,施焊時注意法蘭盤對稱軸與管道軸線平行,并確保插入式多喉徑插入管道中心處,或通過并垂直管道中心軸線,其全壓測量管必須正對流速方向。
3. 為保證焊接不變形,安裝時不應拆開法蘭,需進行整體安裝,并緊固螺栓,確保密封性。
4.垂直官道上,插入式多喉徑可以在管道的任一水平角度插入管道。
5.在水平管道上,插入式多喉徑必須從管道的垂直方向插入管內,亦可水平方向插入管內。
八、選型型譜:
規格代碼 | 說明 | ||||||
ZW- CDH | 規格型號 | 多喉徑流量傳感器 | |||||
測量形式 | /S |
| 單喉徑傳感器 | ||||
/D |
| 多喉徑傳感器 | |||||
測量管徑 |
| 50- |
| DN50 | |||
65- |
| DN65 | |||||
80- |
| DN80 | |||||
100- |
| DN100 | |||||
125- |
| DN125 | |||||
150- |
| DN150 | |||||
200- |
| DN200 | |||||
225- |
| DN225 | |||||
250- |
| DN250 | |||||
300- |
| DN300 | |||||
350- |
| DN350 | |||||
400- |
| DN400 | |||||
450- |
| DN450 | |||||
500- |
| DN500 | |||||
600- |
| DN600 | |||||
800- |
| DN800 | |||||
900- |
| DN900 | |||||
1000- |
| DN1000 | |||||
工作壓力 |
| 1 |
| 0.6 MPa | |||
2 |
| 1.6 MPa | |||||
3 |
| 2.5 MPa | |||||
4 |
| 4.0 MPa | |||||
5 |
| 6.4 MPa | |||||
6 |
| 10.0 MPa | |||||
工作溫度 |
| 1 |
| 120℃以下 | |||
2 |
| 220℃以下 | |||||
3 |
| 380℃以下 | |||||
介質類型 |
| Ⅰ |
| 單點布置 | |||
Ⅱ |
| 兩點布置 | |||||
Ⅲ |
| 三點布置 | |||||
Ⅳ |
| 多點布置 | |||||
管道材質 |
| C | 碳鋼 | ||||
S | 不銹鋼 | ||||||
O | 其它材質 | ||||||
型號標記方法:
ZW-CDH- S/D- DN□-PN□-Ⅰ/Ⅱ/Ⅲ/Ⅳ -C/S/O
ZW-CDH 多喉徑流量傳感器
S/D S為單喉徑傳感器,D為多喉徑傳感器。
DN 公稱通徑(㎜)例如DN1000,為公稱通徑1000㎜。
PN 公稱壓力(Mpa)例如PN0.1,為公稱壓力0.1 Mpa。
Ⅰ/Ⅱ/Ⅲ/Ⅳ Ⅰ為單點布置,Ⅱ為兩點布置,Ⅲ為三點布置,Ⅳ為多點布置。
C/S/O 管道材質:C為碳鋼,S為不銹鋼,O其它材質。
九、訂貨須知事項:
用戶訂貨時請提供以下條件以便幫助正確選擇流量裝置的規格和系數。
1、 管道尺寸:外徑 壁厚(mm);
2、測量介質名稱:介質密度〔kg/m3〕;
3、設定的zui大流量:即流量計的量程上限值〔kg/h或m3/h〕;
4、工藝的zui小流量:〔kg/h或m3/h〕;
5、工作壓力:(Mpa);
6、工作溫度:(℃);
最新資訊文章
- 流速式流量計的安裝注意也需要一定講究
- 氣體渦街流量計在測量蒸汽爐煤氣時出現問題及解決方法
- 孔板流量計測量瓦斯抽放流量時的安裝要求及取壓方式
- 測蒸汽時應選孔板流量計還是渦街流量計?
- 差壓孔板流量計出現故障時 不妨試試以下方法
- 天然氣流量計管道調試故障原因分析
- 插入式流量計的原理與分類
- 如何消除污水流量計工頻干擾和零點漂移
- 孔板流量計:自動化設計廢鋼鐵行業轉行井噴
- 前后直管段太短時孔板流量計應該如何安裝
- 德爾塔巴流量計的安裝要求以及注意
- 高壓孔板流量計在冷凍水檢測中的注意要點及解決方案介紹
- 選型蒸汽流量計時所需要注意的問題介紹
- 導致孔板流量計誤差變大的原因分析
- 孔板流量計測量蒸汽產生誤差的原因分析及解決辦法
- 深入探究影響孔板流量計進行煤氣流量計量的因素
- 質量流量計和控制器引擎蓋下的主要組件詳細介紹
- 淺析階躍溫度及水流速度對金屬管浮子流量計的影響
- 選擇流量計時會犯的10個常見錯誤以及如何避免錯誤
- 運用標準計量器具校正金屬管浮子流量計
- 如何正確安裝蒸汽流量計
- 天燃氣流量計的功能介紹
- 蒸汽流量計運行工作前的準備和調試
- 限流孔板流量計作為流量測量元件的使用條件有哪些
- 環形孔板流量計在各介質中的應用













